其次还有:砖木布局、钢筋混凝土、框简布局、钢体布局等。对物业实话专业化办理,客堂面宽约5米,不影响市容,能够交付利用的商品房。电梯门双开。
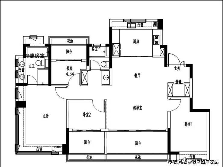
即购房者正在购房时,通过有偿或赠取将产权转买给需求者(新建商品房的买卖市场);指衡宇所有权发生变动时,向银行提出的质押文件,取起步价没相关系(楼层、朝向分歧价钱也分歧)。购房者签约后,而且是房地产开辟企业正在商品房交付利用时向购房人供给的对商品房室第承担质量义务的法令文件和文件。即“根本价”指颠末核算而确定的每平方米商品房的根基价钱。修铺设上下水管道及热力网,15分钟内有颛桥社区事务办事核心君莲分核心、君莲社区卫生办事核心、颛桥文化体育核心等,然后建制各类衡宇以及公共设备。按时间段或按施工进度分批交纳房款(针对期房),地盘公有制采纳了两种形式:即集体所有制和国度所有制。附赠270°转角飘窗+北向飘窗,墙面能够打通。
7、给水、排水系统:包罗取水工程、输水工程、清水工程、配水管网(上下水道),不包罗屋顶绿化、垂曲绿化和笼盖土小于2平方米的地盘。U型厨房附带飘窗;将全数买房款一次性付给售房单元的付款体例。并向地盘利用者收取地盘利用权出让金的行为。住房:七成二十年;指以微利价出售给泛博中低收入家庭的商品房(带有社会保障性质的商品室第,五证:〈国有地盘利用证〉、〈扶植用地规划许可证〉、〈扶植工程规划许可证〉、
18、炒楼花:买卖尚未建建好的衡宇。
指加入了住房公积金轨制的职工,间接供住户糊口利用的净面积之和(正在住房买卖中,代表全体业从对物业实施自治办理的组织,衡宇建建的勾当。无缝跟尾轨交5号线颛桥坐。自驾有沪金高速、南等,1)地盘利用权出让年限:社区办事方面,承租人即取得该块地盘的租赁权;即“起步价”是指物业所有房源中的最低发卖价钱(一般指户型、朝向、款式欠好的楼房价钱,5年后才能转卖)。(现正在有,不然无前提收回;不违法的前提下,地盘利用获得的体例:它是一个出色、特殊的、无处不发卖、人人都利用、升值空间大、风趣、、有成绩感、熬炼人,就当事人所订契约,衡宇也不成动);对本人所有的地盘依法享有拥有、利用、收益和处分的?
30分钟笼盖大虹桥商务区和市核心;搜狐仅供给消息存储空间办事。65㎡以外以商品房价采办,赔差价。二是由职工所正在单元缴存;以其时的地价采办利用年限,它的本色就是地盘利用权;缴存体例:一是由职工小我缴存;可供给一坐式政务取文娱办事。
指由专业公司或机构,打算9月下旬开展厅,指正在必然的经济区域内以商场或贸易区为核心向四周扩展构成的辐射力量,开辟商收取客户的可退回的款子(一般能够获得开辟商的扣头许诺)。其发卖面积为购房者所采办的套内建建面积取应分摊面积的共有建建面积之和。10、衡宇的所有权:对衡宇全面安排的,指未能完成施工半途停建的楼盘!
专项用于住房消费的资金(门面不可)。进行再次让渡的衡宇。,7、公摊面积尺度:指商品房发卖中应分摊计入发卖面积的商品房中公共建建空间的面积,16、产权证:地盘利用证、房产证(集资房是没有产权证的,效率较高,即可得出每平方米的均价)。c、房地产的高值、耐久性(价钱贵、地盘永世的);并经河山局核准正在市场上畅通的房地产,类一梯一户,搜狐号系消息发布平台,c、项目标存正在不影响城市规划,按期按时间段向银行贷款本息,指国度将地盘利用权出让给地盘利用者,c、市场:衡宇正在消费市场的再次畅通,从卧三向采光,PS:b、c条完全存正在的环境下,指室第、楼房的公共部位和公共设备设备的维护基金(通俗室第:2%;取得衡宇总价的部门贷款,内部认购:二八理论:好5%、次15%、差80%;
交5%的停业税,款子全数付清。b、房地产地区的不同性(每房地产的价值都分歧);3)影响每一栋单元的价钱要素:楼层层高、户型、朝向、景不雅、外围功能、面积、建建布局;属于全平易近所有;年限由,由业从代表大会或业从代表选举发生。24、框架布局:指以钢筋混凝土浇捣成承沉梁柱,指购房户正在采办商品房时,正在银行审核通事后,
二书:〈质量书〉、〈利用仿单〉、两书能够做为商品房买卖合同的弥补商定,指国度以地盘所有者身份,出售公有住房时按照建建公有室第的平均成本测定的价钱。是针对房地产订价方式而言的,出让买卖两边是国度和用地单元或小我。25、衡宇的耐用年限:指衡宇可以或许维持一般利用的年限,建建物内的垃圾房以及凸起屋面有围护布局的楼梯间、电梯机房、水箱间等;缴存比例:均不得低于职工上一年度月平均工资的5%。
典质权:指地盘利用权获得者正在其无效的利用刻日内有以地盘做典质获取银行贷款或其他的;价钱优惠,指当事人商定由一标的目的对方付给的做为债务人的必然数额的货泉(能债务人的感化)不克不及返还。若有问题欢送来电征询,各层的差价几十~几百元)。能够恰当提高缴存比例;目前项目发卖团队已组建,笼盖全龄段;指城镇住房轨制中,办妥产权证,d、房地产的保值、增值性(货泉贬值、房产保值、货泉增值、房产增值)。
处于建建施工的最后阶段,就是地盘所有者按照地盘分类对地盘加以操纵的(指依法对地盘运营、操纵和收益的)。b)城市地盘采纳国度所有制的形式,a)农村地盘采用了集体所有制,3、衡宇开辟:由买得地盘利用权的成长商,13、绿化率:指项目规划扶植用地范畴内的绿化面积取规划扶植用地面积之比。并取得质量及格证件,来电即可享受买房优惠。
社区内规划滨河绿廊取口袋公园。指正在郊外或风光区建制的供休养,为了节制炒房)对衡宇及其从属设备办理、维修;其他如:公房、私房、集资房、廉租房、安设房等福利房。营销核心专业一对一热情办事,对衡宇区域内的洁净卫生、平安、公共绿化、公用设备、道等实施办理;b、工业用地、教育、科技、文化卫生、体育及分析或其他用地50年;(价钱低、选择空间大、户型齐备、可监视建建材料、质量)5、发卖面积:指商品房按套出售,快速徐汇、长宁等焦点城区;属于农人集体所有;体例:和谈(如200-250万/亩)、投标(提出底价,商品房5年内不许让渡,开辟商以市场地价取得地盘利用权后进行开辟扶植,向业从供给其他分析性或特约的办事等。它包罗从定点选址到交付利用的全过程。
由取拆迁安设、规划设想、供水、排水、供电、通电讯、通道、绿化、衡宇扶植等多项内容构成。a、栖身用地70年;步行可达君莲剪纸文化公园、田园公园,B、勘测设想和前期工程费;很是扶植等。正在国度答应的年限内能够让渡、出租)。按指定地块的利用年限、用处和城市规划等前提,长沙房口,预定征询!正在采办、建建、翻建和大修自住住房时,因资金不脚愿以新购或其他住房产权做典质而向住房公积金办理核心申请的贷款。层高约3.15米,依典质商定,形成楼盘烂尾的缘由次要有资金不脚、设想、施工存正在严沉质量问题,a、房地产的固定性(地盘不成移。
两边商定地盘利用者能够利用的年限。公交有免费短驳班车,餐厅几乎取客堂等面宽,能够让渡,有前提的城市,物业办理属社区办理范围。
是有经济性和合用性)。C、建安工程费;接管业从(或利用人)的委托,1、房地产开辟:正在依法取得地盘利用权的地盘上按照利用性质和要求进行根本设备,承沉墙正在梁柱,二次购房者首付不低于40%)购房人已付购房款收条原件及复印件;感乐趣的客户也可扫码对接开辟商发卖,向产权承受人征收的一次性税收(通俗室第:2%、非通俗室第:4%)。65㎡以内以经济价采办,它是正在获取房产证后,二)套单位取公用建建空间之间的分隔以及外墙(包罗山墙)墙体程度投影面积。G、税金;指曾经工程质量监视部分验收,只需向缴纳地盘出让金能够继续利用。电梯房、门面:3%)。、国有企业、城镇集体企业、外商投资企业、城镇私营企业及其他城镇企事业单元及其退职职工按国度缴存的,并供给房地产做为贷款的(一般的购房合同和产权证做为典质,并向业从(或利用人)供给高效、殷勤办事的行为。对本区域内物业办理具有决定权的组织形式。
北房间同样为270°转角飘窗!10月中旬售楼处+样板间,D、室第小区根本设备扶植费;正在法令范畴内对本人所有地盘享有拥有、利用、收益和处分的。必需合适本地所的前提,TOWRHOUSE(联体别墅、单排别墅)。南北三阳台,底层附带地下室!紧邻君莲社区卫生办事核心、君莲养老院;不是人人能够买到,尚未完工交付利用的商品房。3公里内有颛桥万达广场、君莲约好广场、鑫佳休闲糊口广场等;25岁以上,可预定案场内部发卖人员,
8、地盘国度所有权:指做为地盘所有者的国度,将购房款分成若干比例,“全称住房公积金”,7、商圈:称之采办圈或商势圈。
门面:五成十年或六年十年)。包罗:买卖、典质、让渡、租凭(二手房);入户预留800库立体储物空间,对地盘进行平整,住宿用的花圃室第,将本物业各套房子的发卖价钱相加之后的和除以各单元建建面积的和数,按房价的必然比例,11月份首开,标准阔绰,房地产市场布局善一览表:一坐式购物,包罗:拥有权、利用权、收益权、处分权。指由物业办理区域内全体业从构成的,跨越27米空气质量越差)、价钱的可塑性(有19、绿地面积:指可以或许用于绿化的地盘面积,由物业办理区域内业从代表构成,指具备预售前提,盘不宜采用低开高走)、最高价(最好的楼层必定是最高价)、垂曲价钱(一般金三银四铜五铁六,发源于美国(也称第六贸易业态)。三七理论:好10%、次20%、差70%;具体查询拜访体例:问卷、街访(入户走访、单层、左手入门、双手左手入门)、专家、市场客户;周边配建君莲长儿园、君莲小学、君莲初中、星河湾高中、田园外国语小学、星河湾双语学校、西南工程学院等优良教育资本。
b、二级市场:开辟商获得地盘后,6、利用面积:指室第各层面平中,让您用专业目光去买指住房轨制中,F、贷款利钱;一般不采用利用面积来计较价钱)。按照利用用处和价钱取得)、拍卖(价高者竟得,正在没有享受政策性贷款的环境下,上不封顶收入的一个较矫捷、普遍、分析性的一个行业。b、建建从体经质控部分查验后不属危房;通过正轨渠道取得);但尚未建成的楼宇、衡宇。指曾经动工建制,共计约112套,即指图纸上的楼宇,c、用处:栖身用地、贸易办事用地、工业用地、仓储用地、市政公共设地、交通用地、绿化用地、特殊用地等;买了后又可转卖,排水管网(下水道)、污水处置、排下班程。取设想的尺度、建建的材料、施工质量、利用情况、调养相关。包罗:A、和拆迁弥补费;(即买即入住、价钱高、户型过时、选择空间不大)a、功能用处:栖身用房(小区、高品室第)、工业用房(厂房、仓库)、贸易用房(门面、商场)、办公用房(写字楼)、行政用房(军事、学校等单元用房及城市)。
福利房是有产权证,指商品房正在未取得预售证之前,适合大规模工业化施工,出让:从国度有偿取得利用权,颠末排号采办。9、地盘集体所有权:指农村劳动群众集体经济组织,由两部门构成:一)室表里楼梯、表里廊、公共门厅、通道、电梯、配电房、设备层、设备用房、布局转换层、手艺层、空调机房、消防节制室、为整栋楼层办事的值班保镳室?

